ЖК Южные кварталы
Уютная квартира в нежных пастельных оттенках для молодой пары айтишников.
Дизайн интерьера достаточно прост в реализации. Мы не использовали каких-то сложных решений, требующих финансовых затрат и времени. Но тем не менее, квартира получилась стильной и уютной за счет разнообразных отделок и фактур стен, и необычных светильников.
Отделка кухонного фартука в микроцементе переходит на стену. В этом же материале выполнена стена за ТВ. Стулья, диван и ковер разбавляют пастельную гамму, вносят в интерьер динамику и глубину. Изящный декор в виде панно на стене, светильников и журнального столика привносит в интерьер изюминку.
Первый вариант дизайна гостиной. Более теплая цветовая гамма. Но клиенты попросили добавить холодных оттенков.
Интересный факт:
Небольшое помещение, предназначенное для санузла рядом с кухней (дверь на кадре слева) мы сделали постирочной-кладовой. И разместили туда холодильник и места для хранения.
Интересный факт 2:
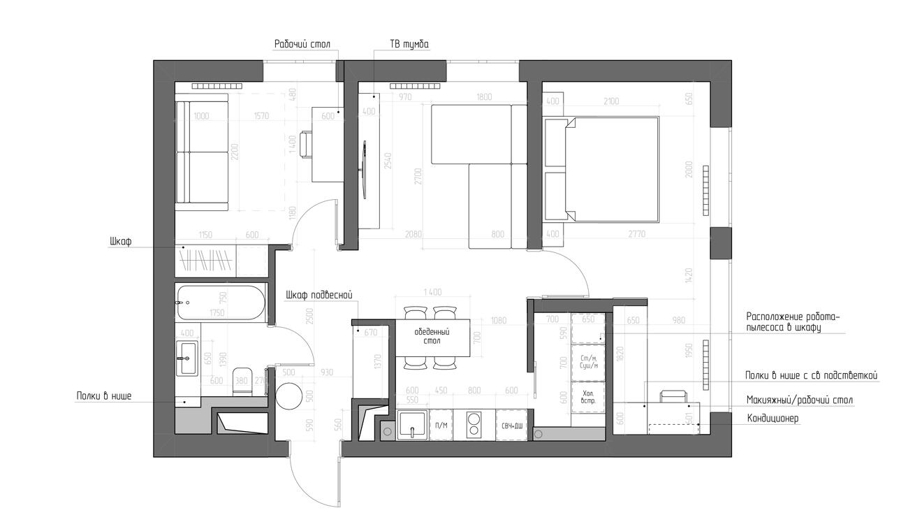
Одним из главных пожеланий клиентов было избежать открытых поверхностей из за скопления пыли
Потолок мы сделали достаточно темным, не белым. Пастельный коричневый цвет плавно перетекает в изголовье кровати. При этом, полок и пол выполнены в одном оттенке.Всё это создает обволакивающую атмосферу уюта и расслабления.
В дальней части комнаты мы расположили гардероб и рабочее место/макияжный столик.
Клиентам понравились две текстуры керамогранита, они не могли сделать выбор в пользу одного, поэтому мы визуализировали два варианта.
Так же и по раковинам. Нравились два варианта. Но в итоге клиенты остановились на раковине-чаше.
