ЖК в центре Екатеринбурга
Трехкомнатная квартира для семьи с двумя детьми и домашними животными.
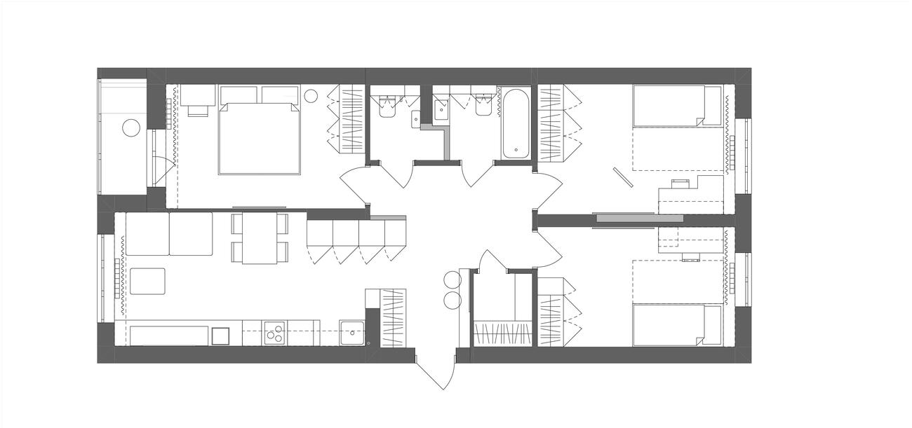
Квартира с продуманной и функциональной кухней-гостиной, мастер спальней и лоджией с рабочим местом, двумя детскими для девочек, большим и маленьким санузлами, а также отдельной гардеробной.
Главным пожеланием заказчиков было создание удобной и функциональной квартиры, с большим количеством мест хранения. В небольшой кухне-гостиной было необходимо вместить шкафы с хранением и всей техникой, удобный диван, стол для всей семьи и место для черепахи.
Также хотелось убрать большой, неиспользуемый коридор. За счет небольшой перепланировки удалось расположить кухонные шкафы со всей техникой, частично выходящей в зону коридора, а также организовать большое место для готовки. Грамотно продуманная перепланировка позволила вместить стандартный диван и стол, за который поместится вся семья.
Как единое помещение. Мы не стали закрывать кухню-гостиную дверью. Оставив открытый проем до потолка.
Более того, за счет небольшой перепланировки удалось расположить кухонные шкафы со всей техникой, которые мы частично вынесли в зону коридора, и отгородили стеной (см. планировочное решение выше). Тем самым использовав простанство большого, неиспользуемого коридора, который застройщик разместил по центру квартиры.
Грамотно продуманная перепланировка позволила вместить стандартный диван и стол, за который поместится вся семья.
В тумбе ТВ редусмотрен специальный отсек для черепахи. Аквариум будет стоять на декоративной полке из керамогранита, а сверху будет подвесная тумба с ТВ и саундбаром.
Благодаря данному решению получилась необычная композиция с зоной ТВ, которую можно использовать с разными сценариями жизни, при этом не переживая за долговечность материалов и ее уборку.
При входе квартиру расположилось большое зеркало с подсветкой.
Консольная тумба предназначена для хранения ключей, для того, чтобы ставить на нее вещи, сумки.
Два пуфа удобны тем, что их переставлять в любую часть по помещения по необходимости.
Цветные акценты легко подлежат замене, если вдруг хозяева захотят поменять цвет без больших вложений. Так появилась общая концепция: яркие цвета в текстиле и декоре, отделка спокойная, в оттенках всей квартиры, но с добавлением панелей с монохромным, графичным принтом.
Освещение на токопроводящей ленте с переходом на стены является интересным решением, добавляющим свою особенность и позволяющим объединить основные источники света.
Вторая детская для младшей дочери выполнена в другой цветовой гамме. С приглушенными зелеными оттенками.
Как и другие помещения, мастер спальню необходимо было визуально сделать больше и добавить большую двуспальную кровать, место для хранения и макияжный столик. Минималистичные решения в отделке и большие тонированные зеркала помогли расширить визуально пространство и создать «дорогой интерьер» без сложных решений.
На лоджии расположилось все, и небольшой диванчик, и место с хранением, и полка для декора, и небольшой столик для комфортной работы.
Подвесной столик у кровати предназначен как для макияжа, так и для работы за ноутбуком.
Большое зеркало визуально увеличивает пространсво.
Пригулушенная подсветка за кроватью настраивает на расслабление и отдых.
Ради сохранения общей геометрии помещений,в двух санузлах, мы спрятали все трубы в короба и над ними добавили дополнительные места для бытовой химии и косметики. Благодаря такому решению, со всей разводкой сантехники получилось сделать все стены без выступов. При этом оставив максимальный доступ к трубам.
