ЖК на Мехренцева
Мы разработали гармоничный дизайн для современной квартиры, объединив функциональность и уют. Основной акцент сделан на продуманное зонирование и спокойную цветовую гамму с яркими акцентами.
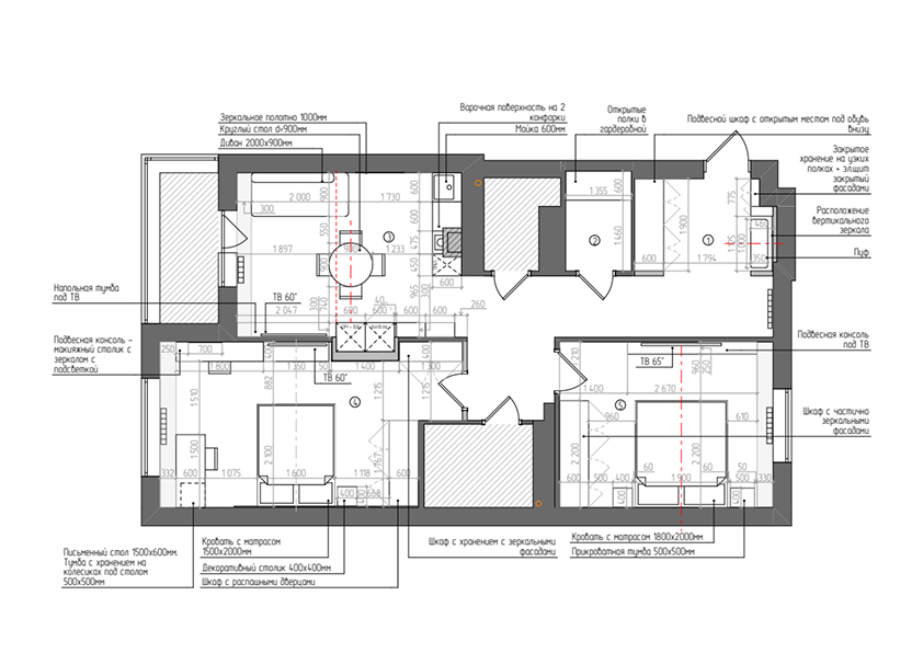
Дизайн квартиры в ЖК на Мехренцева сочетает современный стиль с семейным уютом. Светлые тона и продуманная планировка создают комфортное пространство для жизни. Кухня-гостиная с мягким освещением, удобная детская с безопасными решениями и практичные санузлы — всё продумано до мелочей. Многоуровневое освещение и качественные материалы делают интерьер одновременно стильным и уютным.
Для ребенка мы создали воздушное пространство в мягкой пастельной гамме, где каждая деталь продумана для комфорта и развития. Основной тон — теплый белый с акцентами нежно-бежевого, что создает спокойную и в то же время игривую атмосферу.
Мы разработали два варианта детской комнаты в разных цветовых решениях. Второй вариант детской выполнен в теплых бежевых тонах с приглушенным розовым оттенком.
Санузлы выполнены в гармоничной светлой гамме, где доминируют оттенки серого с текстурными акцентами. Основная концепция — сочетание чистых линий и тактильно приятных материалов.
Санузлы выдержаны в элегантной светлой гамме с акцентами из текстурного дерева. Крупноформатный серый керамогранит на стенах и полу сочетается с текстурной плиткой в зоне раковины. Парящий эффект создает скрытая подсветка по периметру потолка. Главный акцент - тумба с деревянным фасадом, чья теплая текстура смягчает холодную палитру.
Сочетание натуральных текстур создает гармоничное пространство для комфортной жизни. Особое внимание уделено световым сценариям - встроенные светильники и подсветка позволяют легко создавать атмосферу в интерьере за счет нестандартных но практичных решений.
