ЖК Leningrad
Квартира в Санкт Петербурге для семейной пары с маленьким ребёнком. Минимализм с нотками Питера – в дизайне использованы классические лепные элементы – карнизы и молдинги.
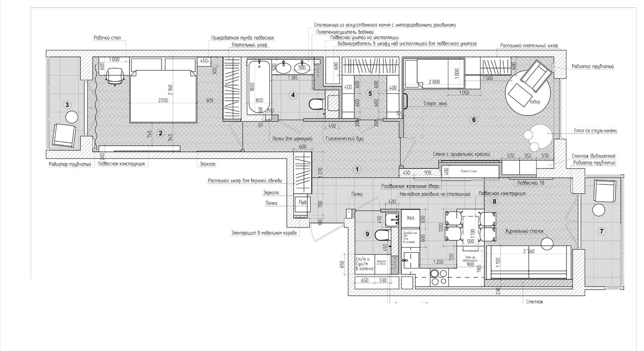
В хухне гостиной мы разместили кухонные гарнитуры верхней шкафчики выполненные стекла. диван с небольшой библиотекой – полками над ним санузел – постирочная. Второй санузел ванной и большим хранением.
В спальне по желанию клиентов мы разместили рабочее место.
Общий дизайн спокойный, сдержанный, подходящий для отдыха и расслабления.
Черные вставки в светильниках, канте кровати и тумбочки задает некую строгость помещению.
В деской основной задачей было продумать гармотное зонирование для игор, занятий и сна.
Спальное место рсароложено на первом уровне, и над ним игровая зона.
Так же есть зона для чтения, рабочая зона, меловая стена для рисования в виде домика. Зона с картой.
И даже осталась место для игрового уголка, спортивного уголка.
Особая зона в квартире - детская комната.
Второй уровень кровати - сложная сварная конструкция. Которая органично стыкуется со шкафом. Где можно смотреть кино с друзьями, читать книжку, или ночевать другу маленького хозяина.
Сетка-ограждение поммимо декоративной функции может использоваься по прямому назначению- для занятий спортом и игр.
Под потолком закреплени канат так же для подвижных игр.
Реализация ванной комнаты.
Особую роль в интерьере играет освещение.
Для того, чтобы полежать в ванной и расслабиться, можно выключить верхний свет и оставить теплую приглушенную подсветку.
