Ленина, 8
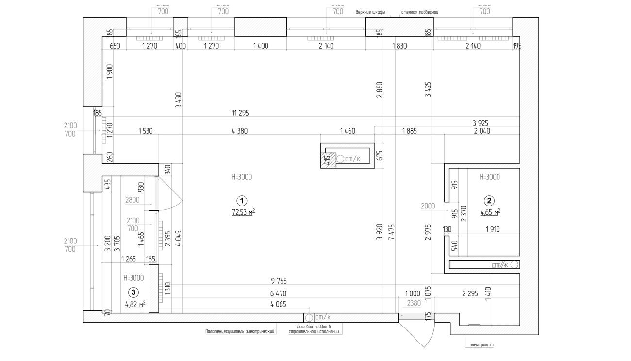
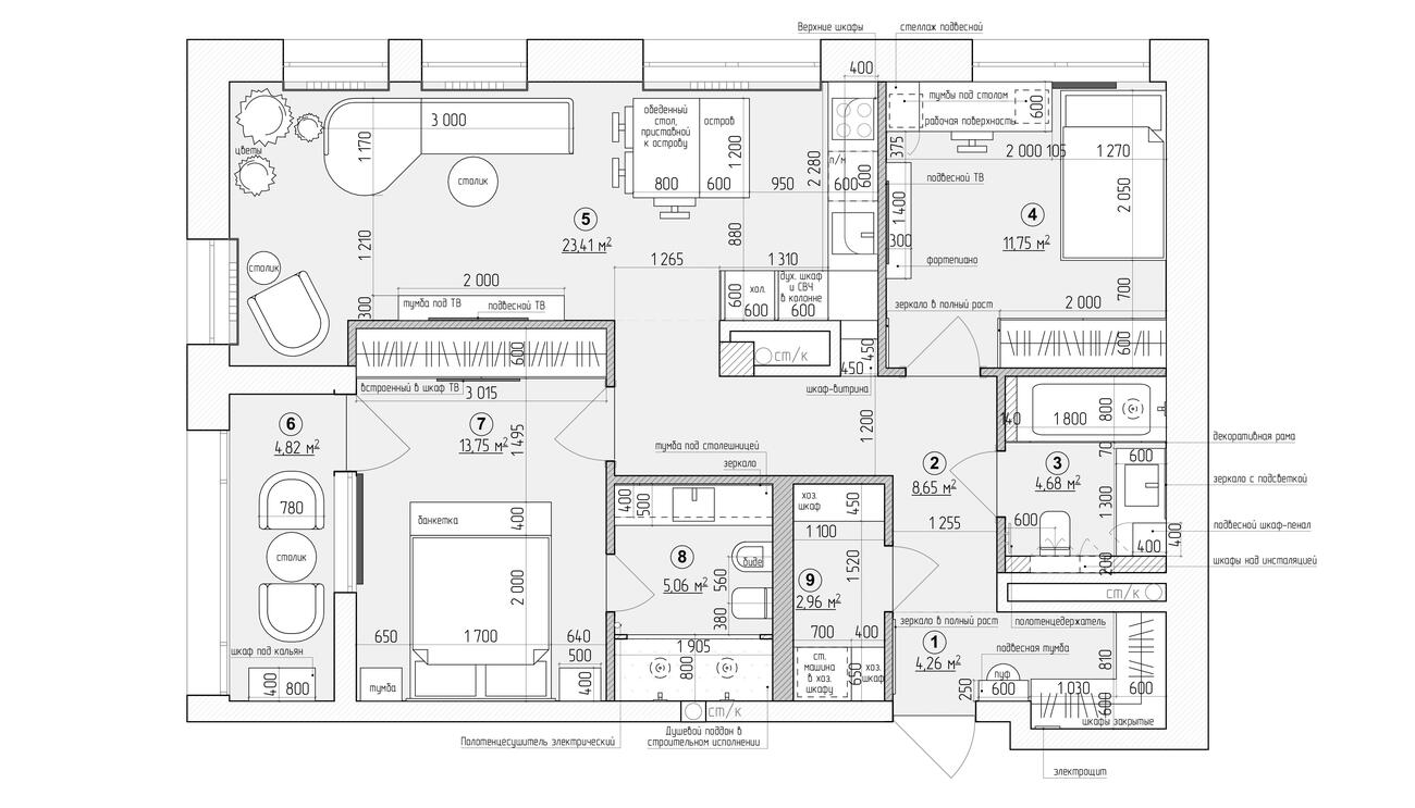
Квартира для семьи с дочкой девяти лет. Изначально квартира была без внутренних перегородок (свободной планировки). На относительно небольшой площади 80 квадратных метров за счет перепланировки удалось разместить такие помещения, как прихожая с гардеробной системой, постирочная, гостевой санузел, детская, кухня-гостиная, спальня с мастер-санузлом и лоджия. Преимущество квартиры в высоком потолке-он здесь 3 м.
Главным пожеланием клиентки было использование в отделке шпона, латуни и лепного декора.
Цветовая гамма мягкая и спокойная.
Использование разных сценариев освещения.
Красивые кадры проекта.
Латунь, теплый мягкий свет, пастельные тона - всё, как хотела наша прекрасная клиентка Евгения.
Особенность планировки кухни-гостиной в том, что часть ее площади мы использовали под размещение шкафа в спальне. В получившейся нише мы разместили кресло для чтения, где можно уединиться и отдохнуть за чтением книги.
Светильник-спот на стене со шпоном вносят нотки роскоши и утонченности в интерьер.
В кухне-гостиной, прихожей и коридоре мы сделали единый пол по периметру, который отделан керамогранитом и стыкуется через латунный профиль с инженерной доской. Скрытые двери нестандартной высоты-2,5 м (справка: стандартный размер двери - 2,1м) обрамляет накладной плинтус.
Интресный факт.
Вместо классчиеского ворсового ковра, мы сделали ковер из керамогранита. Состыковав его с основным покрытием так же, как и в прихожей через пробковый компенсотор.
Процесс реализации проекта.
На фото хорошо видно устройство подоконника.
Мы спрятали радиаторы от застройщика в короб, и закрыли его декоративной решеткой из МДФ.
Подоконники и откосы отделаны керамогранитом со стыковкой через латунный профиль.
Фото в реализованном проекте с клиентами и руководителем студии:
