Квартира на Плотинке
Интерьер спроектирован для комфортной повседневной жизни. В основе — тёплая палитра, натуральные материалы и простые формы. Все пространства визуально и функционально связаны между собой, создавая единый и спокойный ритм.
Потолок и стены выкрашены в один цвет, что создает уют и гармонию.
Пространсво, словно, обволакивает, и наполняет спокойствием.
Продуманная система освещения из нескольких сценариев позволяет создавать "настроение"
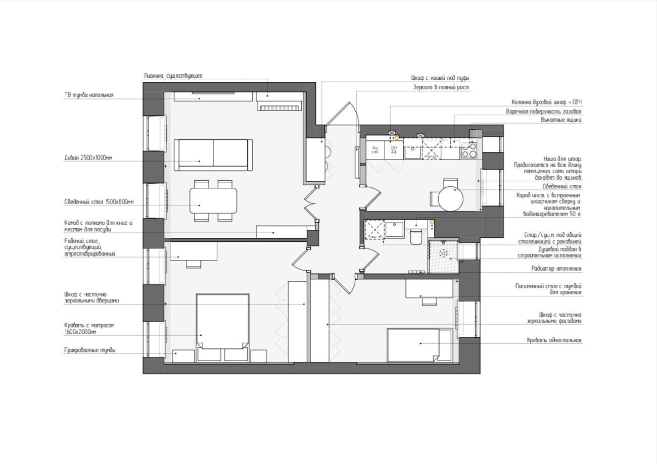
Планировка и структура
Квартира разделена на два функциональных блока:
-
Общественная зона — объединённая кухня-гостиная.
-
Приватная часть — спальня, кабинет-ниша, санузел, гардероб.
Логика планировки подчёркнута скрытыми системами хранения, встроенными корпусными элементами и световыми линиями, формирующими ритм пространства. Все перегородки выполнены из ГКЛ с шумоизоляцией.
«Ценность этого проекта — не в декоре, а в продуманной архитектуре: свет, текстура и точность стыков создают атмосферу».
Универсальное пространство для работы и отдыха.
Светлые стены и натуральный пол создают спокойную атмосферу. Рабочая зона выделена тёмным столом и лаконичным стулом. Мягкий свет и естественное освещение делают кабинет удобным и приятным в использовании.
Минимум мебели, максимум света. Пространство визуально расширено за счёт светлой отделки и единых покрытий с жилыми зонами. Всё лишнее убрано — только функциональные решения, подчёркивающие чистоту и порядок с самого входа.
Минимум мебели, максимум света.
Пространство визуально расширено за счёт светлой отделки и единых покрытий с жилыми зонами. Всё лишнее убрано — только функциональные решения, подчёркивающие чистоту и порядок с самого входа.
Мягкая, спокойная, без лишнего.
Центр — кровать с высоким изголовьем в тёплом акцентном цвете. Стены — кремовые, шкаф встроен и «растворяется» в пространстве. Подвесные светильники создают мягкое освещение. Атмосфера полностью расслабляющая.
Этот интерьер — про повседневный комфорт без лишнего. В нём нет показной декоративности, но есть продуманные решения, которые делают жизнь удобнее. Единая палитра, натуральные материалы и простые формы создают спокойную атмосферу, где легко жить, работать и отдыхать. Всё — на своём месте, всё работает на задачу: быть уютным и современным пространством, в которое хочется возвращаться.
