ЖК Репин Парк
Интерьер в тёплой нюансной цветовой гамме с добавлением ярких холодных цветовых акцентов (цвета изумруд, бирюза) в мебели, которую клиентка всегда сможет заменить. А «база» интерьера в виде отделки останется и не потеряет своей актуальности сквозь года, несмотря на меняющиеся тренды. Лепные элементы в виде карнизов, молдингов и высокого плинтуса придают интерьеру изящность и строгость.
Общая концепция:
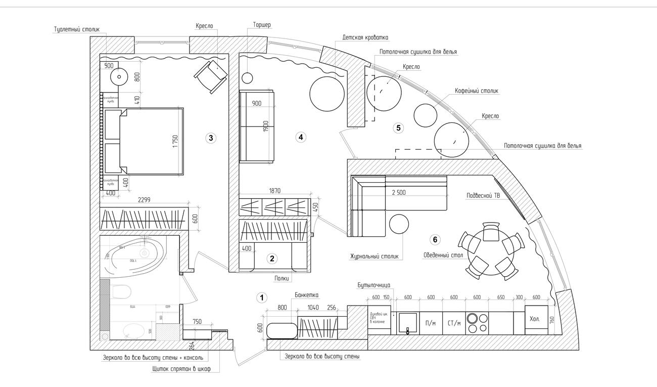
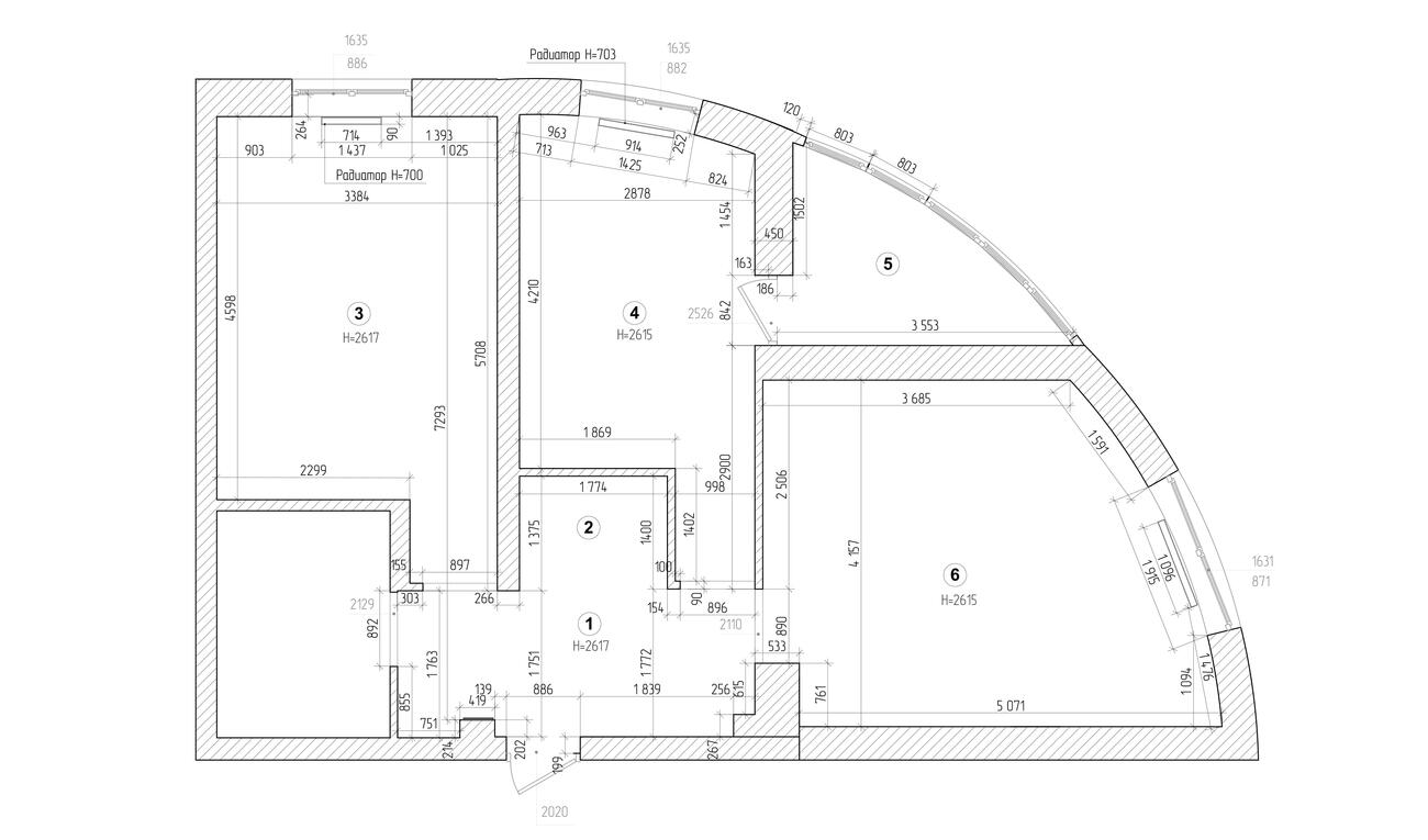
Хозяйка квартиры – молодая девушка. Предпочитает светлые пастельные тона и современную классику. В проектировании этой небольшой квартиры мы объединили кухню, гостиную и прихожую, тем самым визуально увеличив пространство. В интерьере появилось больше «воздуха» и света засчет демонтажа перегородок.
Интерьер не потеряет своей актуальности сквозь года. За счет того, что в базовой отделке мы использовали светлые оттенки, текстуры мрамора и дерева, и она служит фоном к ярким акцентам в мебели, которые всегда можно заменить.
Помимо гардероба в прихожей есть большой вместительный шкаф для верхней одежды. Чтобы было удобно одеваться есть широкая банкетка и большое зеркало во всю высоту стены, которое так же увеличивает пространство.
Кухонный гарнитур с насыщенным изумрудным оттенком. Материал фасадов гарнитура-эмаль. Верхние шкафчики в эмали с фрезеровкой. По бокам расположились колонны с СВЧ и духовым шкафом и встроенный холодильник. Есть большая рабочая поверхность. Вытяжка встроена в верхний шкафчик. Внизу расположились посудомоечная машина, стиральная машина, и ящики для хранения.
В отделке пола в кухне-гостиной и прихожей использовали крупноформатный керамогранит 60*120 см с латунными профилями.
В спальне предусмотрно мягкое изголовье уникальной трубчатой формы.
Подвесные светильники и латунные ручки у шкафа повторяют форму изголовья.
Детская предусмотрена для будущего ребёнка. Поэтому цветовая гамма выбрана нейтральная, которая подойдет как для мальчика, так и для девочки. Изюминкой детской является декоративное панно с китами. Рельефные панели и яркий потолочный карниз делают интерьер интересным для ребенка. Из мебели разместили всё самое необходимое – шкаф, диван.
Команда проекта:
Руководитель студии Мария Плюснина, клиентка Анна, и прораб Анталолий Марочковский
Посморите, насколько гармонично интерьер дополняет хозяйку!
И еще один интересный факт.
Ремонт по проекту длился 4 года. Изначально клиентка заказала дизайн-санузла. В процессе ремонта ей захотелось видеть уже всю квартиру в таком же стиле. Финансирование проекта велось достаточно неспешно, поэтому сроки получились большими.
