Квартира в Тарко-Сале
Дизайн проект
Площадь : 50 м2
Стиль: минимализм
Двухкомнатная квартира с кухней, детской, спальней, лоджией, ванной и санузлом. Общая стилистика проекта - минимализм. Основными характеристиками объекта являются использование нежных пастельных оттенков, озеленение и большая функциональность при небольшой площади.
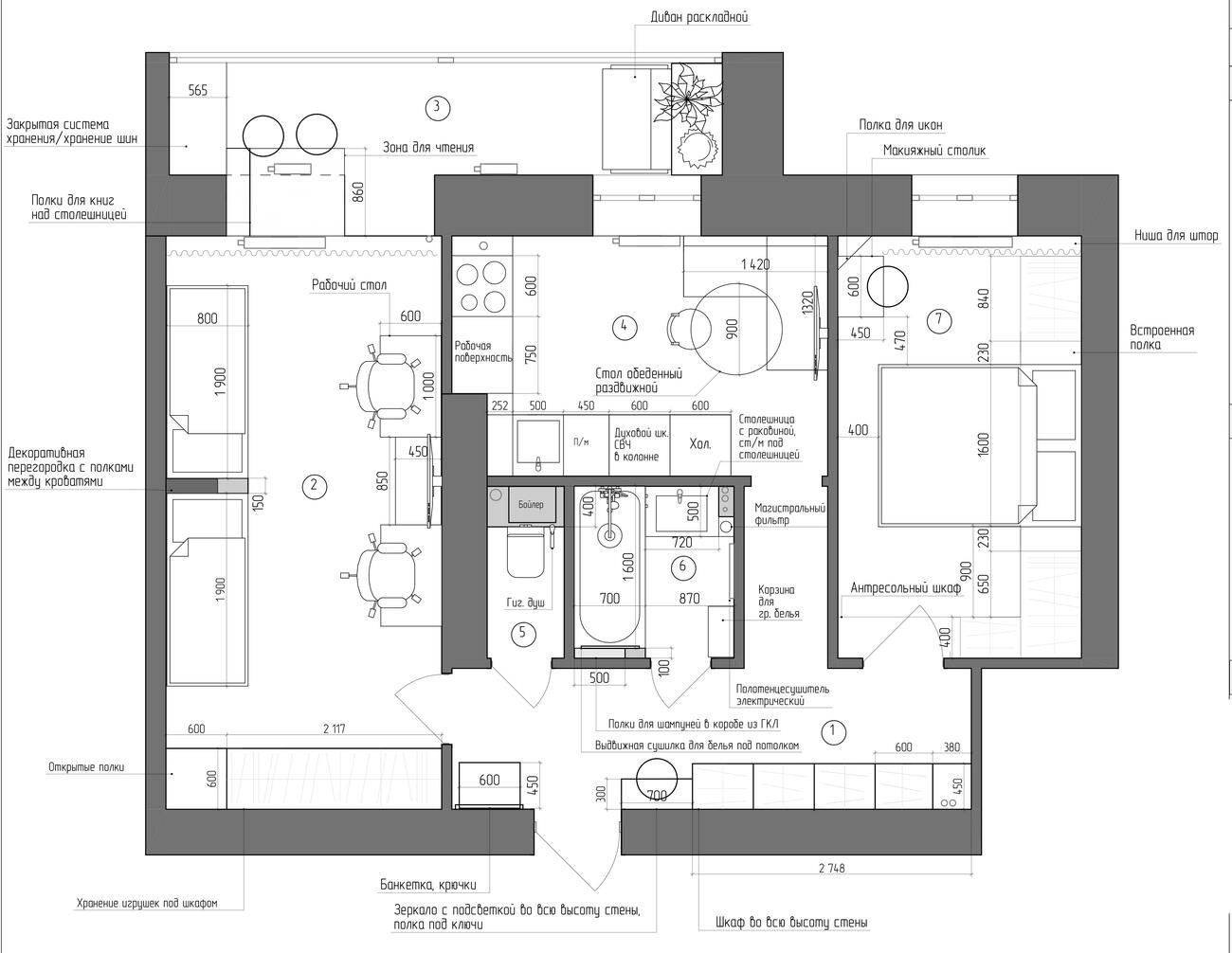
Планировка
Техническое задание от клиента
Общая концепция:
Создание функционального и стильного пространства в современном стиле с использованием спокойных светлых оттенков без ярких акцентов, объединением лоджии и детской, а также размещением на лоджии зоны отдыха, чтения и иного досуга.
Бюджет на реализацию: 60 000 руб/м2
Цвета: приглушенные и нейтральные цвета, без контрастных цветовых сочетаний и ярких оттенков (по желанию клиента).
Кухня
Кухня, хоть и небольшая по площади, не лишена своей функциональности. За счет использования антресолей в ней разместился вместительный кухонный гарнитур, вся необходимая техника и даже небольшой угловой диванчик. Благодаря использованию близких по тону оттенков и обилию разнообразных текстур и фактур кухня визуально кажется больше.
Детская
По запросу клиентов, мы сделали две одинаковых кровати и два одинаковых стола., чтобы не было споров у маленьких хозяек - дочек клиентов. Особенностью комнаты является использование формы шара в опорах столов, форме стульев, светильников. Она создает ощущение воздушности и мягкости.
Нежная фреска с теплой верхней подсветкой - главный акцент детской.
Нежная фреска с теплой верхней подсветкой - главный акцент детской.
Спальня
В помещении спальни клиенты попросили предусмотреть как можно больше места для хранения, поэтому вместо прикроватных тумб мы сделали шкаф со встроенными полками. Над самой кроватью разместили антресольные шкафчики.
Напротив кровати разместился туалетный столик, красиво дополненный высоким зеркалом с подсветкой.
Напротив кровати разместился туалетный столик, красиво дополненный высоким зеркалом с подсветкой.
Лоджия
По желанию заказчиков лоджия должна объединяться с детской. Мы убрали существующее остекление между ними, оставив лишь оконный блок, на котором впоследствии разместили столешницу, ставшую полноценным рабочим местом.
На лоджии так же есть небольшой раскладной диван, окруженный зеленью и светом.
Интерьерное озеленение в сочетании с мягкой подсветкой сыграли свою роль - комната выглядит свежо, гармонично и уютно.
На лоджии так же есть небольшой раскладной диван, окруженный зеленью и светом.
Интерьерное озеленение в сочетании с мягкой подсветкой сыграли свою роль - комната выглядит свежо, гармонично и уютно.
